Quadrilocale in vendita

Garda, Via Monte Baldo
€ 985.000
4 locali 4 locali
176 Mq 176 Mq
3 bagni 3 bagni

Quadrilocale in vendita

Garda, Via Monte Baldo

Descrizione annuncio

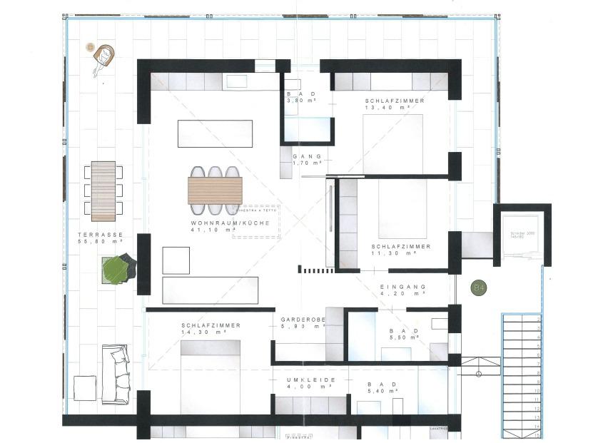
A Garda, in un moderno residence di nuova costruzione con piscina, proponiamo in vendita un appartamento al primo ed ultimo piano, servito da ascensore.

L’immobile si distingue per la luminosità e la disposizione razionale degli spazi: Dall'ingresso si ha comodo accesso ad una camera da letto per gli ospiti e ad un bagno di servizio. Proseguendo verso la zona giorno, ampia e accogliente, si apre un grande terrazzo ideale per pranzi all’aperto o momenti di relax. La zona notte è composta da ulteriori due camere da letto matrimoniali dotate di bagno privato e cabina armadio, pensati per garantire comfort e funzionalità.

L’appartamento si presenta allo stato interno da rifinire, permettendo ai futuri proprietari di personalizzarlo secondo il proprio stile e le proprie esigenze.

Completano la proprietà un garage doppio e una cantina al piano interrato.

La posizione è particolarmente interessante: il centro di Garda e il lungolago sono raggiungibili comodamente a piedi, pur mantenendo la tranquillità e la riservatezza tipiche di un contesto residenziale esclusivo. Completa la proposta la presenza della piscina condominiale, che arricchisce il valore e la vivibilità dell’intero complesso.

Questa soluzione ritrae un’opportunità perfetta sia come abitazione principale, sia come residenza per le vacanze in una delle località più rinomate del Lago di Garda.

Mostra tutto

Nelle vicinanze

Trasporto pubblico Trasporto pubblico
Garda
Garda
600 m
Flixbus
Flixbus
610 m
Garda
800 m
Ricariche auto elettriche Ricariche auto elettriche
Be Charge Hotel Villa Madrina
610 m
Madrigale the Panoramic Resort
1,2 Km
Costermano Repubblica | EnelX
2,4 Km
Scuole Scuole
Scuole
210 m
Farmacia Farmacia
Farmacia del Garda
580 m
Farmacia Costermano
2,2 Km
Ospedali Ospedali
Ospedali
310 m
White Cross ambulance
600 m
Supermercati Supermercati
Supermercati
140 m
DPiu' Discount
470 m
Fresco mio
660 m
GardaGourmet
1,8 Km
DeBeni
2,4 Km
Negozi Negozi
Panificio Bullio
330 m
Brugi
580 m
Negozi
650 m
P55
700 m
I Dolci della Regina
710 m
Bar Bar
Bar
380 m
Bar Blu Note
640 m
Alla Calle Enoteca
680 m
Bar Officina Nautica
710 m
Bar La Rosa
730 m
Ristoranti Ristoranti
Bar Pizzeria First Meeting
220 m
Pizzeria Milano
270 m
Jolly
400 m
La Cross
550 m
Al Graspo
610 m
Mostra tutto

Caratteristiche

Rif.:
61118616
Piano:
1 di 3 con ascensore (ultimo Piano)
Box:
1
Terrazzi:
1
Camere da letto:
3
Arredamento:
Assente
Mostra tutto
Prezzo Prezzo
€ 985.000
Rata mutuo Rata mutuo
€ 4.657 / mese
Proponi il tuo prezzoProponi il tuo prezzo

Classe Energetica

A4
A4
A4
A4
A4
A4
A4
A4
A4
EP invernale del fabbricato:
EP estiva del fabbricato:
Anno di costruzione:
2024
Riscaldamento:
Autonomo
Tipo impianto:
A pavimento
Tipo alimentazione:
Pannelli

Ti interessa visionare l'immobile?

Fissa un appuntamento  Fissa un appuntamento

Richiedi informazioni

Clicca su Leggi per aprire l'informativa
* Questi campi sono obbligatori

Calcola il tuo mutuo

Semplice e senza impegno
Anticipo

( % )
Mutuo

( % )

pochi semplici passi

inserisci i tuoi dati
Questionario completato
Grazie per aver richiesto un appuntamento senza impegno con un nostro Consulente del Credito e Assicurativo.

Hai inserito correttamente tutti i dati necessari e a breve riceverai una e-mail con un link da convalidare per inviare i tuoi dati.
Affiliato
Studio Lago Srl
Corso Italia, 61 37016 Garda (VR)

Il nostro staff


  • Nicolò Gesuita
    Collaboratore

  • Paule Kucaite
    Coordinatrice

  • Christian Scola
    Collaboratore

  • Manuela Seghetti
    Coordinatrice

  • Riccardo Terzi
    Responsabile
Corso Italia, 61 37016 Garda (VR)
Zona: Lago di Garda - Garda
Mostra su mappa
Orari: Dal lunedì al venerdì l'ufficio osserva il seguente orario: mattina: 9.00 - 12.30 pomeriggio: 15.00 - 19.30. Il sabato mattina dalle 9.00 - 12.30 il pomeriggio dalle 15.00 alle 17.00
Affiliato
Studio Lago Srl
Corso Italia, 61 37016 Garda (VR)

2026 Tecnocasa Franchising S.p.A. - P. IVA 08365160152 - Via Monte Bianco 60/A 20089 Rozzano (MI). Ogni agenzia ha un proprio titolare ed è autonoma. Privacy policy | Policy utilizzo | Cookie policy