Porzione di bifamiliare in vendita

Garda, Via Nereo Maffezzoli
Informazioni in agenzia
3 locali 3 locali
186 Mq 186 Mq
2 bagni 2 bagni

Porzione di bifamiliare in vendita

Garda, Via Nereo Maffezzoli

Descrizione annuncio

Nel cuore di una nuova e raffinata zona residenziale di Garda, proponiamo in vendita esclusiva due prestigiose unità abitative inserite in una moderna villa bifamiliare di nuova costruzione, circondata da contesti recenti, eleganti e immersi nella tranquillità.

Le soluzioni si distinguono per l’elevato livello qualitativo delle finiture, l’attenzione ai dettagli costruttivi e gli spazi studiati per garantire comfort, funzionalità e vivibilità in ogni stagione.

Appartamento piano terra

L’unità al piano terra offre ambienti ampi e luminosi, ed è composta da:

soggiorno con angolo cottura,due camere matrimoniali,due bagni,garage privato,posto auto doppio,grande giardino esclusivo con portico coperto, ideale per vivere al meglio gli spazi esterni in totale privacy.

Una soluzione perfetta per chi desidera indipendenza, comodità e un importante sfogo esterno.

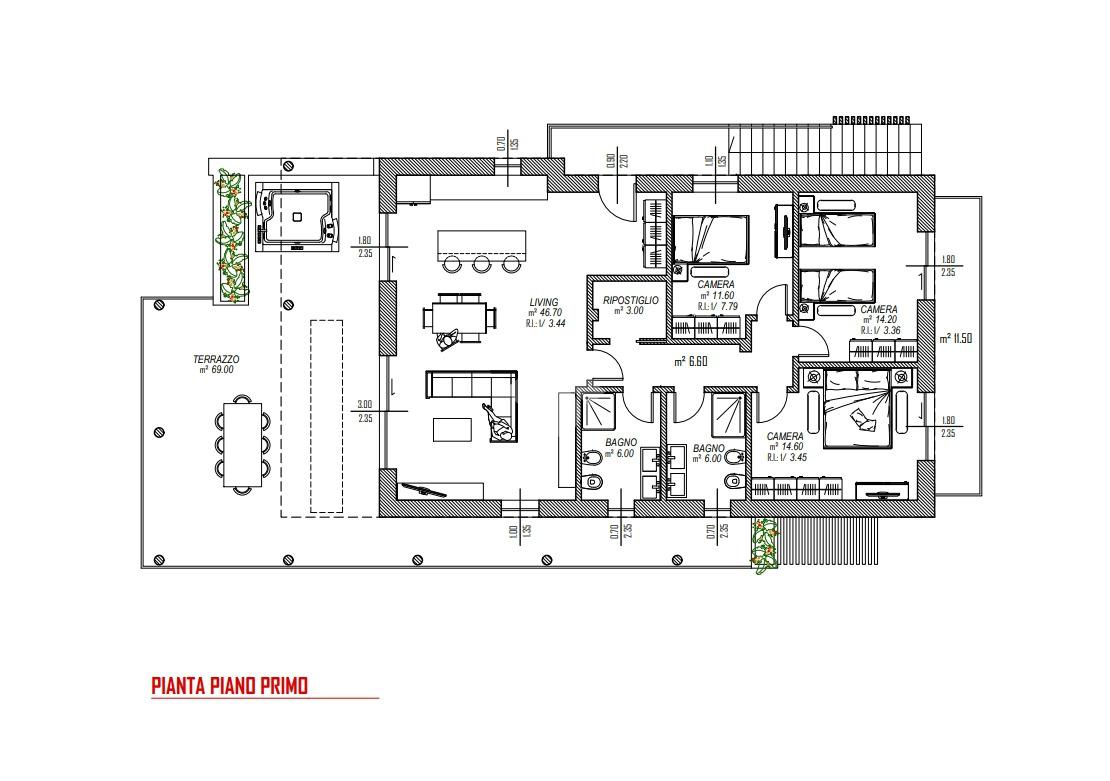
Appartamento piano primo ed ultimo

L’abitazione al piano primo ed ultimo si distingue per gli spazi panoramici e la splendida vista aperta sul verde e sul lago:

soggiorno con angolo cottura,tre camere da letto,due bagni,straordinaria terrazza coperta di circa 70 mq con vista lago e affaccio panoramico a 180 gradi,garage privato,posto auto doppio,piccolo giardino privato all’ingresso.

Una soluzione esclusiva, ideale per chi cerca luminosità, privacy e ambienti esterni di grande rappresentanza.

La posizione risulta particolarmente strategica e comoda, inserita in un quartiere di recente lottizzazione dotato anche di numerosi posti auto comunali, che garantiscono ulteriore praticità per ospiti e parcheggi esterni.

Il capitolato tecnico prevede finiture di alto livello e materiali di pregio. Presso la nostra agenzia sarà possibile visionare nel dettaglio le scelte costruttive e le finiture previste dall’impresa, oltre a effettuare sopralluoghi direttamente in cantiere per apprezzare concretamente qualità, distribuzione degli spazi e il grande potenziale di queste esclusive soluzioni abitative.

Consegna prevista per la primavera 2026.

Mostra tutto

Nelle vicinanze

Trasporto pubblico Trasporto pubblico
Trasporto pubblico
220 m
Garda
Garda
1,5 Km
Garda
1,9 Km
Ricariche auto elettriche Ricariche auto elettriche
Costermano Repubblica | EnelX
1,4 Km
Be Charge Hotel Villa Madrina
1,7 Km
Madrigale the Panoramic Resort
1,8 Km
Scuole Scuole
Scuole
1,3 Km
Farmacia Farmacia
Farmacia Costermano
1,2 Km
Farmacia del Garda
1,5 Km
Ospedali Ospedali
Ospedali
940 m
White Cross ambulance
1,4 Km
Croce Rossa Italiana
3,0 Km
Croce Rossa Italiana Comitato di Bardolino Baldo Garda
3,0 Km
Supermercati Supermercati
DPiu' Discount
1,0 Km
Supermercati
1,1 Km
DeBeni
1,3 Km
Fresco mio
1,5 Km
GardaGourmet
2,1 Km
Negozi Negozi
Panificio Bullio
1,3 Km
Brugi
1,5 Km
I Dolci della Regina
1,5 Km
Negozi
1,6 Km
P55
1,7 Km
Bar Bar
Bar
1,2 Km
Bar Orchidea
1,3 Km
Il Boccaccio Bar Osteria
1,5 Km
Civico 7
1,5 Km
Poker Bar
1,6 Km
Ristoranti Ristoranti
La Lanterna
190 m
Pizzeria Capannina
230 m
Pino 2
280 m
Agritouristica Le Rasole
470 m
Ristorante "Le Rasole"
470 m
Mostra tutto

Caratteristiche

Rif.:
61130789
Piano:
Terra di 2
Totale piani:
2
Box:
1
Posti auto:
2
Terrazzi:
1
Mostra tutto
Prezzo Prezzo
Informazioni in agenzia
Spese annue Spese annue
€ 0
Proponi il tuo prezzoProponi il tuo prezzo

Classe Energetica

A4
A4
A4
A4
A4
A4
A4
A4
A4
EP globale non rinnovabile:
100.01 kW h/m² anno
EP globale rinnovabile:
100.01 kW h/m² anno
EP invernale del fabbricato:
EP estiva del fabbricato:
Anno di costruzione:
2025
Riscaldamento:
Autonomo
Tipo impianto:
A pavimento
Tipo alimentazione:
Altro

Ti interessa visionare l'immobile?

Fissa un appuntamento  Fissa un appuntamento

Richiedi informazioni

Clicca su Leggi per aprire l'informativa
* Questi campi sono obbligatori
Affiliato
Studio Lago Srl
Corso Italia, 61 37016 Garda (VR)

Il nostro staff


  • Nicolò Gesuita
    Collaboratore

  • Paule Kucaite
    Coordinatrice

  • Christian Scola
    Collaboratore

  • Manuela Seghetti
    Coordinatrice

  • Riccardo Terzi
    Responsabile
Corso Italia, 61 37016 Garda (VR)
Zona: Lago di Garda - Garda
Mostra su mappa
Orari: Dal lunedì al venerdì l'ufficio osserva il seguente orario: mattina: 9.00 - 12.30 pomeriggio: 15.00 - 19.30. Il sabato mattina dalle 9.00 - 12.30 il pomeriggio dalle 15.00 alle 17.00
Affiliato
Studio Lago Srl
Corso Italia, 61 37016 Garda (VR)

2026 Tecnocasa Franchising S.p.A. - P. IVA 08365160152 - Via Monte Bianco 60/A 20089 Rozzano (MI). Ogni agenzia ha un proprio titolare ed è autonoma. Privacy policy | Policy utilizzo | Cookie policy